Кабелна стълба LG 60, 6 м VS V2A

Кат. № 6208700 | Електронен артикулен номер (EAN) 4012195064411

6000 mm
1,5 mm
не
Неръждаема стомана, 1.4301
без покритие, за допълнителна обработка
Описание на продукта
Описание на продукта
Кабелни стълби с перфорирана странична стена със странична височина 60 mm със занитени, отворени нагоре C-профилни напречници (изпълнение VS).
Магнитно затихване чрез екраниране без капак 10 dB, с капак 15 dB.

Кабелната стълба се доставя в сгънато състояние.

Подходящата BBS-скоба тип 2056 ще намерите в раздел „Системи стълби“.

  • Магнитно затихване чрез екраниране
  • Communautés Européennes, EG Декларация за съответствие по директивите на EС
  • UKCA декларация за съответствие
  • Кабелна стълба, височина на борда 60 мм
  • Environmental Product Declaration (EPD)
  • CO₂ footprint (PCF)
Технически данни

Въглероден отпечатък CO2 (Product Carbon Footprint)

CO2 отпечатък (GWP) от люлка до портата 13,5917 кг CO2e / 1 Метър
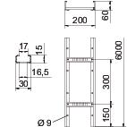
Височина 60 mm
Дебелина на борда 1,5 mm
Дължина 6000 mm
Едрогабаритно изпълнение не
Закрепване на шпросата занитване
Изпълнение на страничния борд плосък профил
Изпълнение на шпросите Перфориран профил
Материал Неръждаема стомана, 1.4301
Неръждаема стомана, байцвана не
Отстояние 0,15 kN/m
Отстояние 1,5 м 3,1 kN/m
Отстояние 2,0 м 2,25 kN/m
Отстояние 2,5 м 1,5 kN/m
Отстояние 3,0 м 1,1 kN/m
Отстояние 3,5 м 0,75 kN/m
Отстояние 4,0 м 0,45 kN/m
Отстояние 4,5 м 0,3 kN/m
Повърхност без покритие, за допълнителна обработка
Полезно сечение 98 cm²
Полезно сечение 9800 mm²
Размер 60x200x6000
Размер на шлица на шпроса 16,50
Размер B 200 mm
Размери 60x200x6000
Разстояние между напречните шпроси 300 mm
Странична перфорация да
Съхраняване на функционалността не
Цвят неръждаема стомана
Ширина 200 mm

Технически данни

Диаграма на натоварване кабелна стълба тип LG 60 VS

Диаграма на натоварване кабелна стълба тип LG 60 VS
  • Permitted cable tray/ladder load in kN/m without man load Permitted cable tray/ladder load in kN/m without man load
  • Support width in m Support width in m
  • Rail bend in mm at permitted kN/m Rail bend in mm at permitted kN/m
  • Load scheme during testing Load scheme during testing
  • Load curve with cable tray/ladder width in mm Load curve with cable tray/ladder width in mm
  • Strut bend curve according to support width Strut bend curve according to support width
Всички типове

Всички типове

Тип Дължина Ширина Дебелина на борда Съхраняване на функционалността Материал Повърхност Кат. № Количество мин. VKE
LG 620 VS6 A2 6000 mm 200 mm 1,5 mm не Неръждаема стомана, 1.4301 без покритие, за допълнителна обработка 6208700
6 m
LG 630 VS6 A2 6000 mm 300 mm 1,5 mm не Неръждаема стомана, 1.4301 без покритие, за допълнителна обработка 6208703
6 m
LG 640 VS6 A2 6000 mm 400 mm 1,5 mm не Неръждаема стомана, 1.4301 без покритие, за допълнителна обработка 6208706
6 m
LG 650 VS6 A2 6000 mm 500 mm 1,5 mm не Неръждаема стомана, 1.4301 без покритие, за допълнителна обработка 6208709
6 m
LG 660 VS6 A2 6000 mm 600 mm 1,5 mm не Неръждаема стомана, 1.4301 без покритие, за допълнителна обработка 6208712
6 m
Принадлежности

Системни принадлежности

Продукти Тип Кат. № Количество мин. VKE
Капак със затварящи ключета V2A Капак със затварящи ключета V2A DRL 200 A2 6052894
3 m
Предпазна капачка 60 Предпазна капачка 60 SKH 60 OR 6222537
40 Чифт

Монтажни принадлежности

Продукти Тип Кат. № Количество мин. VKE
Разделителна стена 45 V2A Разделителна стена 45 V2A TSG 45 A2 6062025
3 m
Надлъжен съединител 60 V2A Надлъжен съединител 60 V2A LVG 60 A2 6208846
10 Брой
Ъгъл 90° VS 60 V2A Ъгъл 90° VS 60 V2A LBI 90 620 VS A2 7160046
1 Брой
Изтегляния

Изтегляне

ЕС Декларация за съответствие LG 620 VS6 A2 / 6208700 , 0.13MB , pdf
Изтегляне
Декларация за съответствие Великобритания LG 620 VS6 A2 / 6208700 , 0.09MB , pdf
REACH Декларация за съответствие LG 620 VS6 A2 / 6208700 , 0.12MB , pdf
RoHS Декларация за съответствие LG 620 VS6 A2 / 6208700 , 0.12MB , pdf
Декларация за екологичен продукт (EPD) LG 620 VS6 A2 / 6208700 , 1.48MB , pdf
Изтегляне

Изтегляне
Ръководство за монтаж General information on the mounting , 2.65MB , pdf
Изтегляне

LG 620 VS6 A2 / 6208700
Изтегляне